Master plan

Growing the Huntingfield community

The Huntingfield land release offers a well-located, modern, mixed-residential subdivision that will deliver around 460 lots over four stages. 

The subdivision will help expand the vibrant Kingborough community and provide housing options that meet the needs and budgets of more Tasmanians. 

It will deliver a range of lot sizes - supporting terraces, town houses and detached houses - with an average lot size of 450 m2. The smaller lots and terraces will allow more families an opportunity for home ownership and housing more suitable for older Tasmanians to age in place. 

The inclusion of small lot housing will be a first in Tasmania. It is a successful, nationally recognised strategy to achieve affordable home ownership where increasing land values are preventing many people from entering from the housing market. 

Huntingfield Masterplan

Most of the land will be offered for open market sale, including through the MyHome shared equity program, at a range of price points that will suit the needs and budgets of a wide variety of people, such as first-home buyers and people re-entering the housing market to downsizers or growing families who need a larger home. 

Approximately 15 per cent of lots will be kept specifically for social and affordable rental housing.

The project will deliver almost equal amounts of residential land and public open space, which will include playgrounds, spaces for recreation, and tree-lined shared paths to encourage cycling and walking. About 12.5 ha of the site will be rehabilitated and revegetated to support the ecological health of the site by restoring native vegetation and enhancing habitat values.

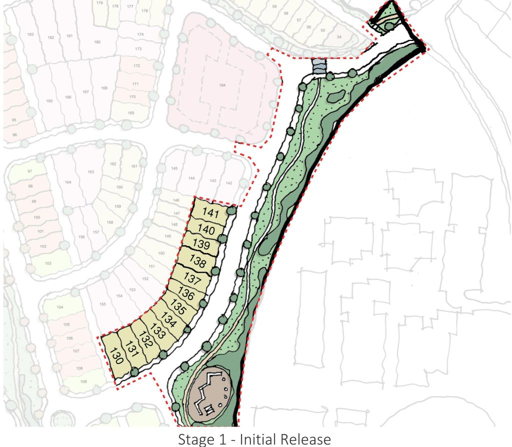
Huntingfield Stage 1 Lots

A dedicated local business area will also create opportunities for small businesses such as cafes, hair salons or convenience stores to provide services for new residents as well as the existing Huntingfield community.

Primary access to the site will be from the roundabout on the Channel Highway, providing an easier and safer entry to and exit from the subdivision.

The road network through the subdivision will be public transport friendly and will create the opportunity for bus services for the new homes as well as the existing Huntingfield community.

Huntingfield - Stage Plan - Stage 1B